NHÀ THỜ GIA TIÊN 5 GIAN | LIM CHÂU PHI | NGA SƠN, THANH HÓA .
Danh mục
Số gian, chái nhà
Mức độ điêu khắc
Chất liệu
Kích thước cỡ nhà
Kích thước cấu kiện chính
Hoàn thiện bề mặt
Giá (kinh phí dự trù)
Mẫu nhà gỗ 5 gian, một biểu tượng của nét đẹp văn hóa truyền thống Việt Nam. Công trình này không chỉ mang trong mình sự thanh bình mà còn là một cách để gìn giữ và lan toả nét đẹp văn hoá quý giá của Cha Ông cho thế hệ hiện tại và tương lai.

Nhà gỗ 5 Gian Hiên Thông
Khi tiến hành thiết kế khuôn viên này, Gỗ Giang đã lắng nghe và thấu hiểu được sự tâm huyết của gia chủ mong muốn một không gian tâm linh truyền thống kết hợp cùng tiện ích trong cuộc sống hiện đại ngày nay. Do vậy đội ngũ kiến trúc sư và lòng yêu nghề của những người thợ mộc đã đặt sự tâm huyết vào từng chi tiết của kiến trúc, gia công chế tác để tạo ra một khuôn viên dung hòa giữa truyền thống và tiện ích hiện đại.

3D Phối Cảnh Khuôn Viên
Thông số kỹ thuật của công trình :
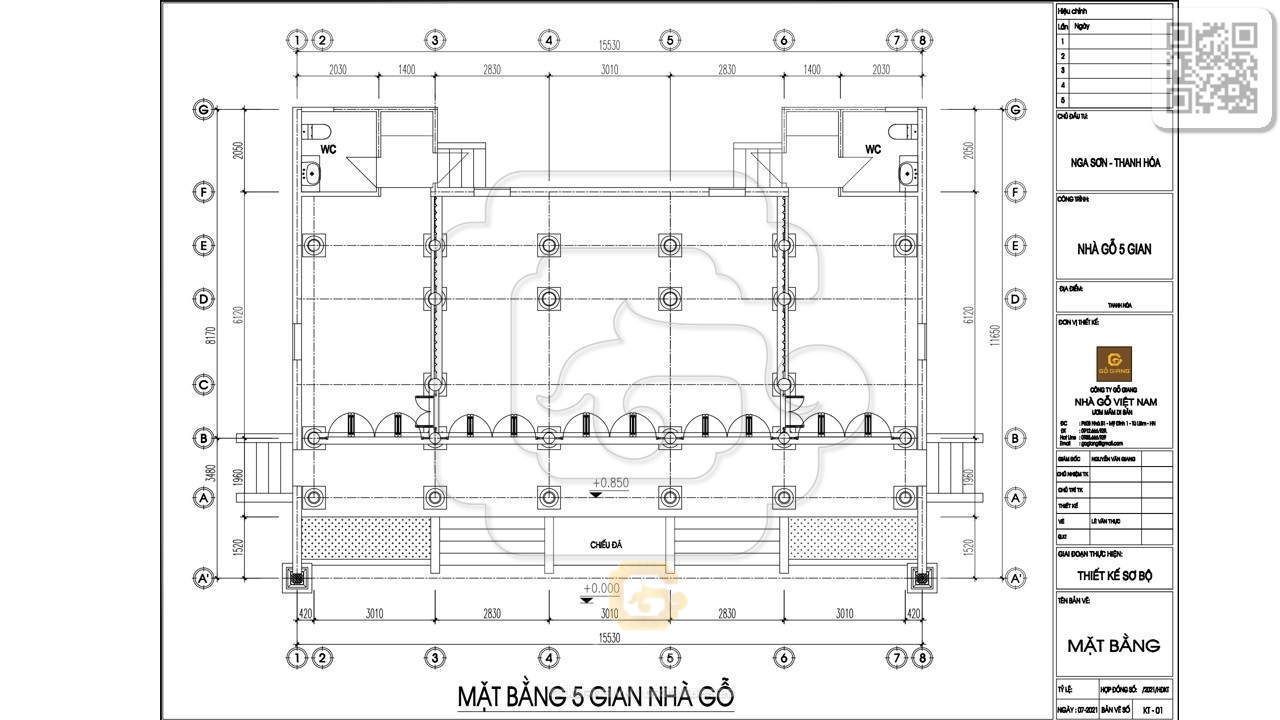
- Chiều dài phủ bì : 15,5 m – Chiều rộng nhà 6,1 m.
- Ngôi nhà được chia gian kích thước tình từ tim tim cột : Gian giữa 3m, Gian bên 2,8m , Hiên : 1,48m.
- Ngôi nhà có 24 cột
- Kích thước cột cái có đường kính 33cm, cột con đường kính 28cm, cột hiên và cột hậu 26 cm.
- Chất liệu : Gỗ Lim Châu Phi hàng thương hiệu.
- Hoàn thiện : Sơn Nano nhập khẩu Châu Âu.

Mặt Bằng Thiết Kế Nhà 5 Gian
Không gian nội thất bên trong nổi bật của ngôi nhà gỗ 5 gian truyền thống là không gian thờ cúng tổ tiên với kiến trúc thờ hai lớp. Đồ thờ được làm với chất liệu gỗ Gụ và hoàn thiện theo lối truyền thống ngâm vôi & đánh vecni bao gồm : Cửa võng, thiều châu, hoành phi, câu đối, bàn thờ, hương án... Điều này tạo ra không gian thờ có chiều sâu và cảm giác trang nghiêm. Do đó không gian này là nơi thể hiện lòng thành kính và tôn trọng của con cháu đối với tổ tiên, ông bà, cha mẹ.




Hoa văn đục chạm trên các cấu kiện của ngôi nhà thể hiện sự kết tinh nhiều yếu tố quý giá của nghệ thuật mộc truyền thống.Mẫu hoa văn này nằm trong bộ sưu tập biểu tượng hồn Việt có bản quyền riêng của Gỗ Giang Mỗi đường chạm khắc được điêu luyện một cách tỉ mỉ và gửi gắm bao tâm huyết, hòa quyện thành một tác phẩm nghệ thuật đẹp mắt, ươm mầm di sản và có giá trị bền vững theo thời gian.




Bên cạnh đó công trình có sự hòa quyện giữa kiến trúc truyền thống với nhu cầu sử dụng mới hiện nay. Việc này nhằm gìn giữ và phát huy những giá trị truyền thống một cách bền vững với 2 buồng gói đầy đủ tiện nghi, thoải mái . Không gian này chính là sợi dây gắn kết thành viên trong gia đình, cũng như tạo mối liên hệ giữa các thế hệ bền chặt hơn.

Một trong những yếu tố đặc biệt trong ngôi nhà gỗ 5 gian là sử dụng các vật liệu hoàn thiện giả cổ: gạch gốm, gạch ốp tường hồi, nề ngõa hoa văn đắp vẽ.... Một số vật liệu được sản xuất theo phương pháp hiện đại, không chỉ mang đến vẻ đẹp cổ điển cho ngôi nhà, mà còn đảm bảo tính tiện nghi và độ bền vững trong quá trình sử dụng. Màu giả cổ mang đến một vẻ đẹp hoài niệm và tinh tế, tạo ra chất cảm riêng cho ngôi nhà và đồng thời duy trì sự hài hòa với phong cách kiến trúc truyền thống.


Chúng tôi tin rằng mỗi dự án là một tác phẩm nghệ thuật độc đáo, và đặc biệt quan tâm đến việc tạo ra kịch bản chiếu sáng hoàn hảo. Mỗi không gian trong ngôi nhà đều có mục đích sử dụng riêng và đảm bảo rằng kịch bản nhằm phù hợp với nhu cầu công năng sử dụng. Liên kết với những chuyên gia hàng đầu về ánh sáng tại Việt Nam, công trình đã được thiết kế và tư vấn lắp đặt thiết bị chiếu sáng.Nhờ sự kết hợp này đã làm tôn thêm vẻ đẹp của gỗ trong không gian truyền thống.




Điểm nhấn của ngôi nhà gỗ 5 gian này với không gian khuôn viên sân vườn, cảnh quan mang đậm nét đẹp làng quê, nơi gia chủ có thể thư giãn và tận hưởng không gian yên bình hòa mình cùng thiên nhiên. Sân vườn được trang trí với vườn cây, ao cá và chòi… tạo nên một không gian thư thái, dễ chịu để thưởng trà, chia sẻ những khoảnh khắc cùng người thân, gia đình.

Công trình vẫn đang trong quá trình hoàn thiện giai đoạn tiếp theo bao gồm : Nhà ngang, Chòi, Sân vườn cảnh quan, Cầu đá, Cổng , Bình Phong...

Chúng tôi hy vọng qua mẫu nhà gỗ 5 gian này khơi gợi được sự lan tỏa và gìn giữ, kế thừa văn hóa nét đẹp truyền thống của dân tộc Việt Nam. Gỗ Giang tin rằng sự kết hợp hoàn hảo giữa truyền thống và cuộc sống hiện đại không chỉ tạo ra một môi trường sống tuyệt vời mà còn truyền cảm hứng, lan tỏa tới nhiều thế hệ tiếp nối trong tương lai.

FULL - THIẾT KẾ KHUÔN VIÊN CÔNG TRÌNH : TẢI BẢN VẼ
Gỗ Giang là một trong những công ty thiết kế và thi công nhà gỗ, nhà thờ họ uy tín và chuyên nghiệp hàng đầu Việt Nam nói chung và Chàng Sơn nói riêng.Vui lòng liên hệ tới Hotline 0933.666.929 (Phạm Sơn) hoặc Nghệ Nhân Quốc Gia -Ths.KTS - Nguyễn Giang – 0912.666.929, để nhận được sự tư vấn nhanh chóng và chu đáo cùng đội ngũ kiến trúc sư hàng đầu, cùng bề dày kinh nghiệm lâu năm trong làng gỗ về thiết kế và thi công nhà gỗ cũng như những mẫu nhà đẹp khác.
- Văn Phòng: số 40 Hàm Nghi, Mỹ Đình1, Cầu Diễn, Cầu Giấy, Hà Nội.
- Địa Chỉ Xưởng 01: số 03, KCN xã Chàng Sơn, Thạch Thất, Hà Nội.
- Địa Chỉ Xưởng 02: số 07 Đồng Cam, KCN Kim Quan, Thạch Thất, Hà Nội.
- Địa Chỉ Xưởng 03: số 35 Đồng Cam, KCN Kim Quan, Thạch Thất, Hà Nội.