NHÀ THỜ 5 GIAN HIÊN THÔNG | LIM CHÂU PHI & LÀO | TP VĨNH YÊN .
Category
Number of rooms, wings
Sculpting level
Materials
House Size
Main component size
Surface Finishing
Price
Công trình này được xây dựng với sự tỉ mĩ và tinh tế trong việc lựa chọn các vật liệu hoàn thiện, tạo nên một vẻ đẹp trường tồn cùng thời gian.Khởi công từ cuối năm 2022 và đang bước vào giai đoạn hoàn thiện nội thất cùng các hạng mục phụ khác dự kiến sẽ khánh thành vào cuối năm 2023.
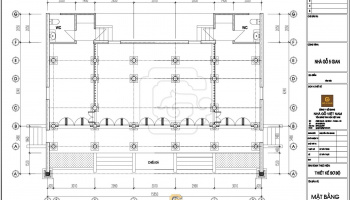
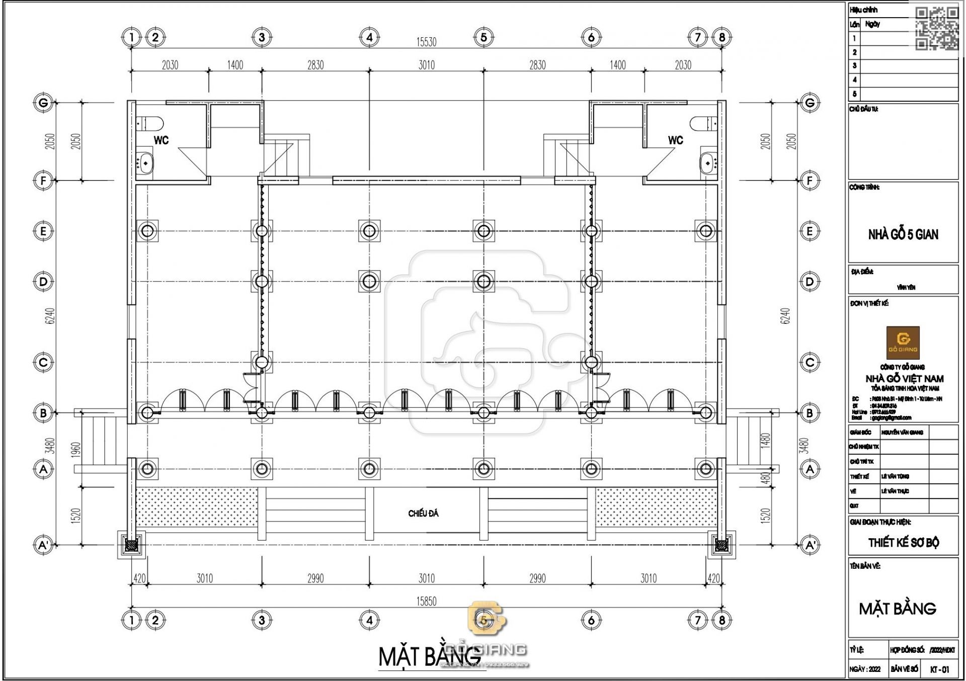
Thông số kỹ thuật của công trình :
- Chiều dài phủ bì : 15,85 m – Chiều rộng nhà 6,24 m.
- Ngôi nhà được chia gian kích thước tình từ tim tim cột : Gian giữa 3m, Gian bên 2,99m , 2 buồng gói 3m01, Hiên : 1,48m.
- Ngôi nhà có 24 cột và 6 cột áp tường.
- Kích thước cột cái có đường kính 33cm, cột con đường kính 29cm, cột hiên và cột hậu 27 cm.
- Chất liệu : Gỗ Lim Châu Phi & Lào.
- Hoàn thiện : Dầu lau cao cấp nhập khẩu Châu Âu.
Nhà gỗ Chàng Sơn – Gỗ Giang là một trong những công ty thiết kế và thi công nhà gỗ, nhà thờ họ uy tín và chuyên nghiệp hàng đầu Việt Nam. Vui lòng liên hệ tới Hotline 0933.666.929 ( Mr Sơn) Hoặc Nghệ Nhân Quốc Gia Ths.KTS - Nguyễn Giang 0912.666.929 để nhận được sự tư vấn và nhanh chóng của đội ngũ kiến trúc sư hàng đầu với bề dày kinh nghiệm lâu năm trong làng gỗ về thiết kế và thi công nhà gỗ cũng như những mẫu nhà đẹp khác.
- Văn Phòng: số 40 Hàm Nghi, Mỹ Đình1, Cầu Diễn, Cầu Giấy, Hà Nội.
- Địa Chỉ Xưởng 01: số 03, KCN xã Chàng Sơn, Thạch Thất, Hà Nội.
- Địa Chỉ Xưởng 02: số 07 Đồng Cam, KCN Kim Quan, Thạch Thất, Hà Nội.
- Địa Chỉ Xưởng 03: số 35 Đồng Cam, KCN Kim Quan, Thạch Thất, Hà Nội.
